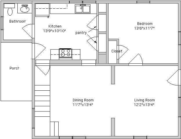
Main floor plan for unit #1106

 

Second floor plan for unit #1106

 

Back to EC Rentals Main