UWEC Student Housing Single Family Housing Commercial Rentals
Return to EC rentals
Commercial Rental
Single Family
Student Housing
UWEC
CVTC
EC Info
EC
                          Map
City of Eau Claire
Contact
 
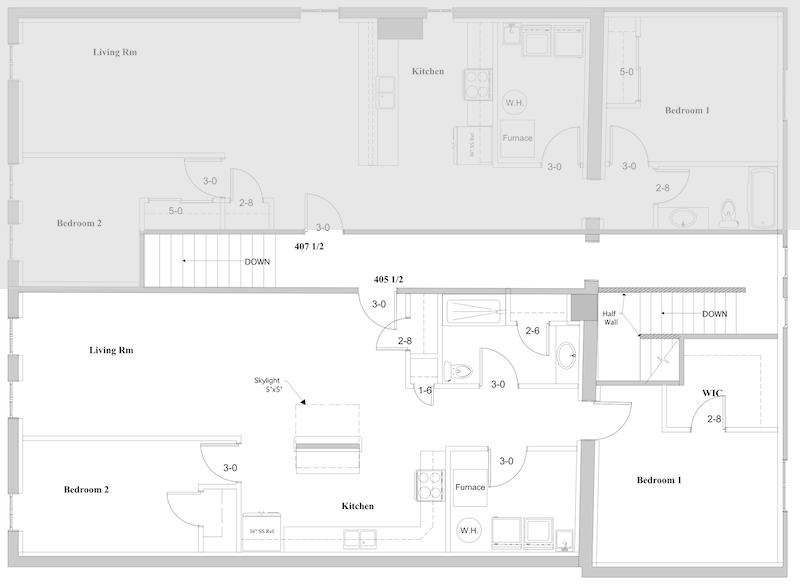
405 1/2
Wisconsin St.
Info

Floorplan & Pictures of 405 1/2 Wisconsin St.

Click on images to enlarge

Click for
                larger floorplan


Back to Information



Please call 715-318-1122 or E-Mail if you have any questions or comments.

Info@EauClaireRentals.com

 

 

 

EauClaireRentals.com is a division of Manz Companies.

 

Eau Claire Rentals, rental, homes, single family houses, duplex, apartment, office, commercial, student, shop, or storage.Altoona, Chippewa Valley, Eau Claire.